网站支持IPv6
政务新媒体矩阵
|
无障碍
|
进入关怀版
搜索
网站首页
井研概况
党政动态
政务公开
政务服务
政民互动
投资促进
现在位置:
首页
-->
党政动态
-->
工作动态
-->
公示公告
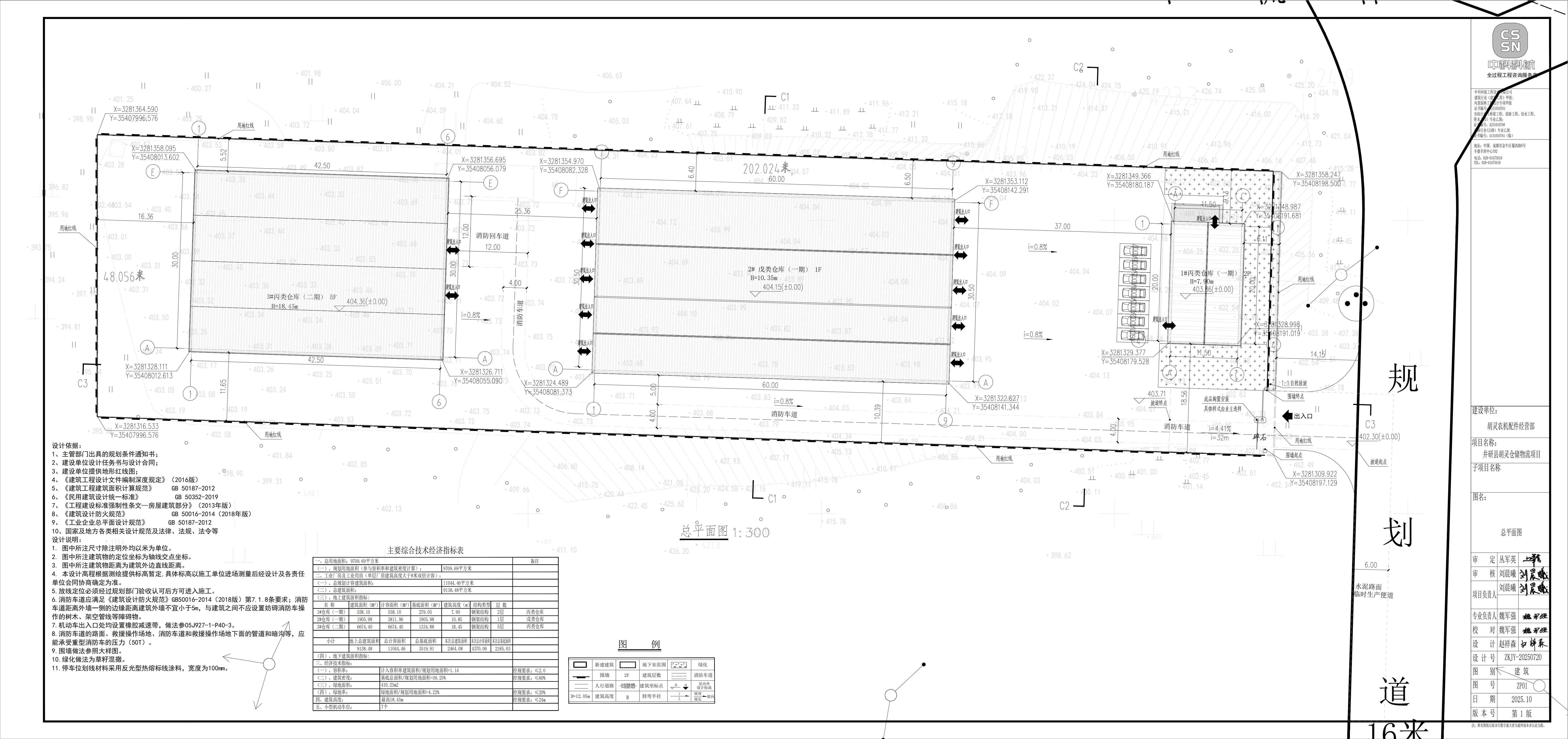
井研县自然资源局关于井研县胡灵仓储物流项目建设工程规划许可的公布
关于井研县胡灵仓储物流项目建设工程规划许可的公布
根据《中华人民共和国行政许可法》《中华人民共和国城乡规划法》相关规定,现将井研县胡灵仓储物流项目建设工程规划许可情况予以公布。
扫一扫在手机打开当前页
发布日期:2026-01-29
信息来源:井研县自然资源局
分享到:
字号:
[大]
[中]
[小]
[打印]
仅打印内容